H o u s e m e t r i c e s

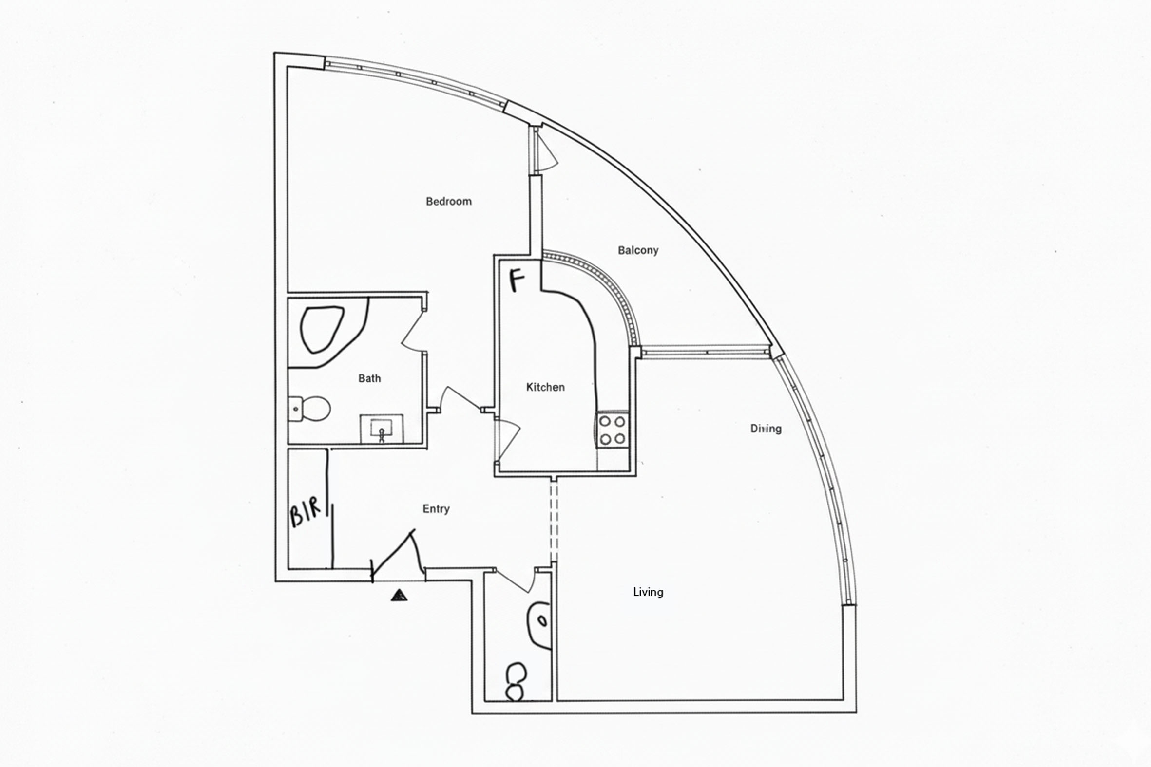
HouseMetric Floor Plan 2D

We provide accurate Floor Plan 2D to showcase your property layout clearly and professionally.

Before After
Before After
Before After
Before After

How the Project Works

A simple and efficient process to transform your property design ideas into reality.

Step 1: Scan or Sketch

Take a Scan or make a sketch of the room and determine the viewport(s)..

Step 2: Upload

Upload your Scan or sketch and select your preferred style.

Step 3: Processing

Our expert team will model your floor plan, produce high-quality renders, and deliver fast—within 1 working day.

Step 4: Ready to Use

Receive JPG, PDF, AI, FML and interactive URL versions for brochures, websites, and portals.

Frequently asked questions?

Just a sketch of the room or a photo and the exact viewpoint you want.

A standard image will not take any longer than 5 business days.

We deliver high quality visualizations with a 100% check by our quality controllers. If we happen to make a mistake or interpret your instructions the wrong way we correct this quickly without any cost.

Your data will only be used to communicate with you and any third parties engaged in the assignment about the assignment(s) you have provided. .

HouseMetric will not provide your information to third parties without your prior consent, unless it is obliged to do so on the basis of a legal provision. HouseMetric can, however, provide (some of) your data to companies affiliated with HouseMetric.
Have more questions?
Contact Us

Want to know more?

Any further questions? Feel free to fill in the form and we’ll get in touch with you.